Objektbeschreibung:
Geflieste Böden mit Steinzeugfliesen
raumhoch geflieste Bäder
moderne Einbauküche ohne Geräte
Vorbereitung für Klima-Anlagen warm/kalt
Hauswirtschaftsraum
Bäder inkl. Badmöbel, Spiegel und LED Beleuchtung
Fußbodenheizung in den Bädern
SAT TV Anschlüssen und Internet im Wohnraum und den Schlafzimmern
Einbauschränke
Fenster aus PVC-Profilen mit Doppelverglasung
Motorisierte Jalousien für Fenster und Balkontüren
Doppeltverglaste Aluminiumfenster
Gemeinschaftspool/Jacuzzi, Kinderbecken
Außenduschen
Privater StellplatzDiese Wohnung befindet sich im I.OG in einer DESIGNER-BLOCK-ANLAGE im Süden der Insel von Mallorca, in der wunderschönen Gegend vom karibischen Strand „Es Trenc“ in der Gemeinde Colonia de Sant Jordi mit dem traumhaften und weitläufigen Sandstrand und dem kristallklarem Wasser,
All dies macht Ihr Zuhause am Meer zu einem idealen Ort, um die Küste Mallorcas und ihre wunderschöne Natur zu genießen.
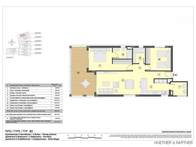
Diese Designer-Wohnung beinhaltet 2 Schlafzimmer und 2 Bäder und umfasst einen Außen- und/oder Tiefgaragenstellplatz mit Abstellraum.
Hightlight ist die 23 m2 große Terrasse in Süd-Lage.
Die Wohnanlage ist umzäunt, was Ihnen und Ihrer Familie mehr Sicherheit bietet.
Genießen Sie die ausgezeichneten
Gemeinschaftsbereiche mit:
Swimmingpool für Erwachsene und Kinder,
Whirlpool,
Grünflächen und Wegen im Innenbereich.
Die Wohnanlage ist herrlich nach Süden ausgerichtet und hebt sich durch ihr innovatives Design LUXERIÖS von ihrer Umgebung ab.
Die Wohnung ist so konzipiert, dass sie das natürliche Licht und die Belüftung dank ihrer großen Glastüren optimal nutzen, die vom Wohnzimmer und dem Hauptschlafzimmer aus Zugang zu den Balkonen oder Terrassen bieten.
Lage:
Die Neubau-Anlage befindet sich im idyllischen Colonia de Sant Jordi im Süden Mallorcas, unweit der malerischen Salinen von S Avall. Nur 300 Meter entfernt erstrecken sich die Strände Els Estanys und Es Trenc, die mir ihrem kristallklaren, türkisfarbenen Wasser, feinem weißen Strand, sowie den
umgebenden Dünen und Pinienwäldern verzaubern.
Colonia de Sant Jordi zählt zu den reizvollsten Orten Mallorcas und ist traditionell für seine Fischereikultur bekannt. Heute begeistert der Ort zudem mit atemberaubenden Ausblicken auf die
in charakteristischem Rosa schimmernden Salinen von S Avall und die vorgelagerte Insel Cabrera.
Hier können Sie sich von der betörenden Schönheit der Sonnenuntergänge in den Bann ziehen lassen.
Eine Küstenpromenade führt entlang der malerischen Küste von Colonia de Sant Jordi und bietet
neben einem Hafen eine Vielzahl an Dienstleistungen und Freizeitmöglichkeiten. Dazu gehören
Restaurant, Supermärkte, eine Schule, Autovermietungen und ein wöchentlicher Markt, auf
dem Lebensmittel, Blumen, Bekleidung und Kunsthandwerk angeboten werden. Dieses charmante Dorf versprüht einen unvergleichlichen Charme.
Die NEUBAU-ANLAGE lädt Sie ein, das mediterrane Leben in seiner reinsten Form zu genießen.
Mehr Informationen:
Die NEUBAU-Anlage besteht aus 28 Wohnungen in 7 Blocks bestehend aus EG-, Etagen- und Penthouse-Wohnungen mii jeweils 2 oder 3 Schlafzimmern.
Die Wohnungen werden fertig gestellt zum November 2026.
Sichern Sie sich jetzt eine LUXUS-Wohnung und bezahlen Sie diese erst im November 2026!!!